BERGMANN 7

STATUT / réalisé

LOCALISATION / Edegem

PROGRAMME / résidentiel

SURFACE / 776 m2

DATE / 2018 - 2021

CLIENT / HomeSync

PHOTOGRAPHIE / Bogdan Cândea

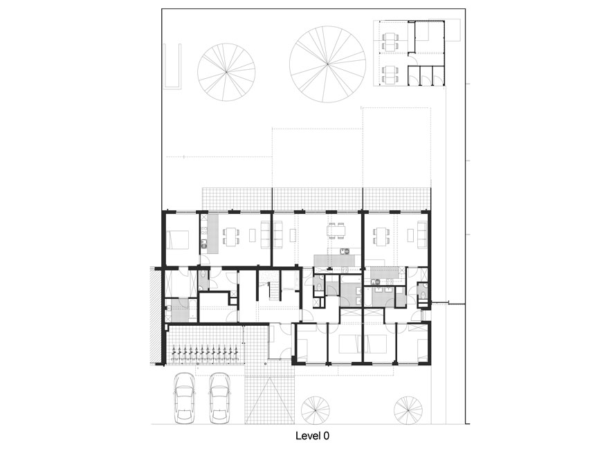
Le projet concerne la reconversion d'une ancienne maison de retraite en un immeuble à appartements de 9 unités. Le projet tire le meilleur parti de l'existant, mais a néanmoins nécessité des interventions plus structurelles. Ainsi, une partie du rez-de-chaussée a été évidée pour permettre l’aménagement d’un abri à vélos couvert. Aux étages supérieurs, l'extension en façade permet d'organiser 3 logements par étage. Enfin, des terrasses dans une structure en acier ont été suspendues en porte-à-faux à la façade pour que chaque unité ait un espace extérieur.

Dans l'idée d'un cohousing, aucune place de stationnement privée n'a été prévue, mais deux places de parking pour 2 voitures partagées ont été aménagées dans la zone de jardin à l’avant. A l'arrière de la parcelle, un jardin partagé a été aménagé, dans lequel est logé un pavillon de jardin avec, entre autres, une cuisine extérieure commune et une terrasse couverte.

Le rythme de façade d’une ou deux baies par chambre de la maison de repos, a été conservé et complété par une nouvelle ouverture ici et là. Une baie de double hauteur en façade arrière inonde la cage d'escalier de lumière naturelle. L'extension sur la façade avant rompt la monotonie et crée une division en plusieurs parties, de sorte que l'échelle de l'ensemble s'intègre mieux aux maisons mitoyennes voisines.

Les façades en briques ont été conservées et chaulées en gris clair afin de bien s'intégrer au bardage bois de l'extension qui grisaillera dans les années à venir. La tonalité calme des matériaux de façade est encore prolongée dans les menuiseries et ferronneries extérieures laquées grises. Les balustrades en verre feuilleté contribuent à l'aspect haut de gamme que cette approche ‘ton sur ton’ confère à l'ensemble.